5 Grapevine RdGloucester, MA 01930




Mortgage Calculator
Monthly Payment (Est.)
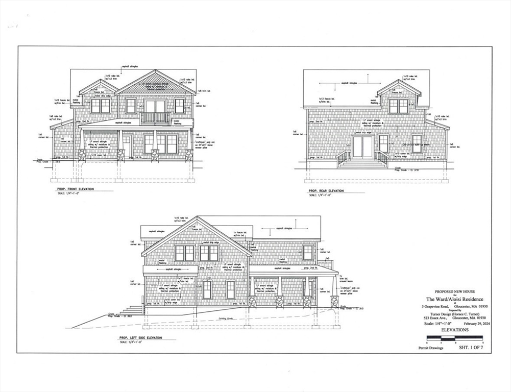
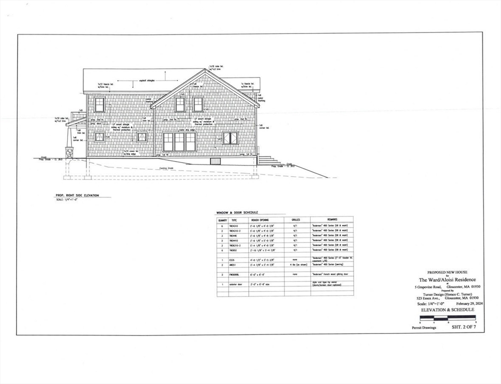
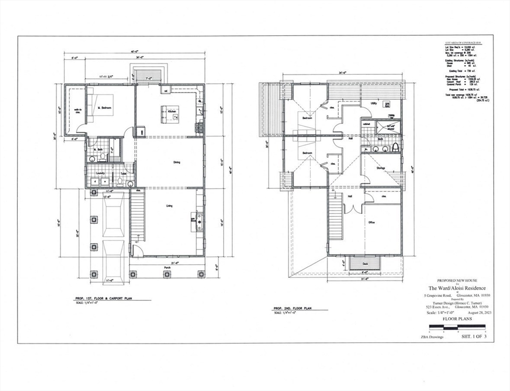
$2,733New construction opportunity in prime East Gloucester neighborhood! This shovel ready lot has all Gloucester Zoning Board and Conservation Commission approvals for your construction of a 2968 SF 3-4 BR 2.5 Bath Craftsman style single family home! Includes custom architect's plans for the home that received approvals from both boards. Home design offers a first floor primary BR, closet and bathroom, laundry room, kitchen, dining room, living room, and 1/2 bath. This home is perfect for age in place! Second floor design offers 2 additional BR's, an office/study or 4th BR, full bath and both an extra storage room and a sep. utility room. Design also includes a front porch and carport. Great location in an area of many multi-million dollar homes! Close to Niles Beach, Rocky Neck art galleries, shops, restaurants, boat marinas, Gloucester Stage Co. theater, Bass Rocks and Eastern Point! All utilities on site include city sewer, city water, updated natural gas line, electricity and cable.
| yesterday | Listing updated with changes from the MLS® | |
| yesterday | Listing first seen on site |
The property listing data and information, or the Images, set forth herein were provided to MLS Property Information Network, Inc. from third party sources, including sellers, lessors, landlords, and public records, and were compiled by MLS Property Information Network, Inc. The property listing data and information, and the Images, are for the personal, non-commercial use of consumers having a good faith interest in purchasing, leasing or renting listed properties of the type displayed to them and may not be used for any purpose other than to identify prospective properties which such consumers may have a good faith interest in purchasing, leasing or renting. MLS Property Information Network, Inc. and its subscribers disclaim any and all representations and warranties as to the accuracy of the property listing data and information, or as to the accuracy of any of the Images, set forth herein.
Last checked 2026-04-17 08:06 AM UTC